cookiesStrona korzysta z plików cookies

Kraków, komercyjna na wynajem, Papierni Prądnickich

Nr oferty: 24198
  • Powierzchnia

    70,31 m2
  • Piętro

    parter

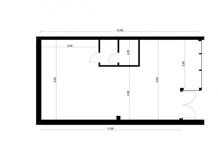
Mint Property ma przyjemność zaprezentować na wynajem lokal użytkowy o powierzchni 70,31 m², położony na nowym osiedlu w rejonie Górki Narodowej.

Lokal znajduje się w stanie deweloperskim, co pozwala na pełną aranżację wnętrza według własnych potrzeb. Składa się z jednego dużego pomieszczenia oraz łazienki, dzięki czemu przestrzeń można dowolnie dopasować do profilu działalności.

Lokal mieści się na parterze, zapewniając łatwy dostęp zarówno dla klientów, jak i pracowników. Obiekt wyposażony jest w wentylację mechaniczną, a także przygotowaną instalację pod montaż klimatyzacji. Wysokość pomieszczeń wynosi 3 m, a ogrzewanie i ciepła woda są z sieci miejskiej.

Dzięki uniwersalnemu układowi i funkcjonalnemu przeznaczeniu lokal doskonale nadaje się zarówno pod działalność handlową, jak i usługową.

Do lokalu przynależy jedno naziemne miejsce parkingowe. 

Lokalizacja

Atutem lokalizacji jest bardzo dobra komunikacja - w pobliżu funkcjonuje nowa pętla tramwajowa „Górka Narodowa” oraz liczne linie autobusowe, a szybki dostęp do trasy S7 i obwodnicy północnej umożliwia sprawny dojazd samochodem.

Okolica intensywnie się rozwija, powstają nowe osiedla mieszkaniowe, co przyczynia się do rosnącej liczby mieszkańców i potencjalnych klientów. W najbliższym sąsiedztwie znajduje się również pełna infrastruktura - sklepy, punkty usługowe, szkoły, przedszkola oraz tereny rekreacyjne.

Cena

7 150 PLN (netto)

Jednorazowa prowizja dla biura nieruchomości.

 Zapraszam do kontaktu oraz na prezentację nieruchomości.

Dominika Ptak
Tel: 786 116 227
Email: dominika.ptak@mintproperty.pl

Cena

7 150 PLN miesiąc 102 PLN / m2

Dominika Ptak

Dominika Ptak

786 116 227

Zobacz pozostałe moje oferty
Zapytaj o ofertę
Wyślij zapytanie o tę ofertę

Lokalizacja

Plan nieruchomosci (1)

plan
Ostatnia aktualizacja: