cookiesStrona korzysta z plików cookies

Kraków, komercyjna na wynajem, Osiedle Teatralne

Nr oferty: 24319
  • Powierzchnia

    74,00 m2
  • Pokoje

    2
  • Piętro

    parter

Mint Property prezentuje na wynajem lokal handlowo - usługowy, zlokalizowany na parterze budynku przy Alei Generała Andersa.

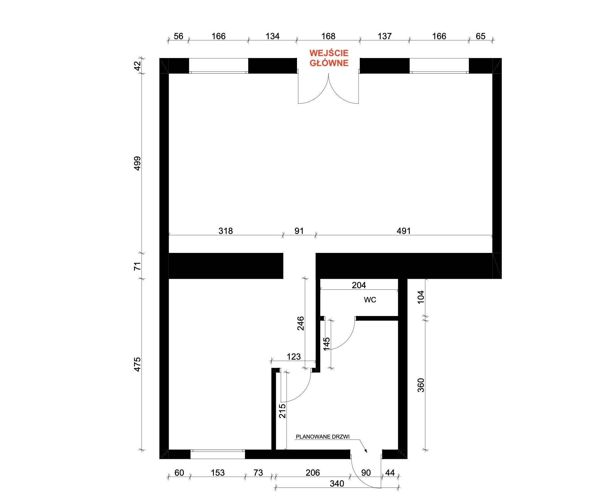
Nieruchomość o powierzchni 74m² obejmuje przestronną salę sprzedaży o powierzchni 45m² oraz zaplecze o metrażu ok. 29 m². Wysokość całkowita lokalu wynosi 4,5 m, przy czym aktualnie zastosowany sufit podwieszany znajduje się na poziomie 4 m. Takie parametry zapewniają komfortowe warunki użytkowe oraz umożliwiają elastyczną aranżację przestrzeni zgodnie z potrzebami najemcy.

Lokal usytuowany jest bezpośrednio przy głównej arterii komunikacyjnej, co gwarantuje doskonałą ekspozycję i widoczność. Dodatkowym atutem są dwa przeszklenia (witryny), wejście od strony ulicy oraz dodatkowe wejście od podwórza, które zwiększa funkcjonalność nieruchomości.

W okolicy dostępnych jest wiele miejsc parkingowych, a brak strefy płatnego parkowania stanowi istotny atut lokalizacj!

Lokalizacja

Lokal położony jest w Nowej Hucie, bezpośrednio przy Alei Generała Andersa - jednej z głównych i najbardziej uczęszczanych ulic w tej części Krakowa.
Dzięki dużemu natężeniu ruchu pieszego oraz świetnej komunikacji miejskiej (bliskość Ronda Kocmyrzowskiego z licznymi liniami tramwajowymi i autobusowymi) lokal gwarantuje stały dopływ potencjalnych klientów. Otoczenie stanowią liczne punkty handlowe, usługowe oraz obiekty kulturalne, takie jak Teatr Ludowy czy Kino Świt, co sprzyja intensywnemu ruchowi w okolicy i czyni lokalizację wyjątkowo atrakcyjną dla działalności handlowej lub usługowej.

Cena

6 600 PLN (netto)

Czynsz administracyjny: 1000PLN (w tym m.in. woda, śmieci, ogrzewanie)

Jednorazowa prowizja dla biura nieruchomości.

Zapraszamy do kontaktu oraz na prezentację nieruchomości.

Dominika Ptak
Tel: 786 116 227
Email: dominika.ptak@mintproperty.pl

Cena

6 600 PLN miesiąc 89 PLN / m2

Dominika Ptak

Dominika Ptak

786 116 227

Zobacz pozostałe moje oferty
Zapytaj o ofertę
Wyślij zapytanie o tę ofertę

Lokalizacja

Plan nieruchomosci (1)

plan
Ostatnia aktualizacja: