cookiesStrona korzysta z plików cookies

Kraków, mieszkanie na sprzedaż, Stachiewicza

Nr oferty: 24377
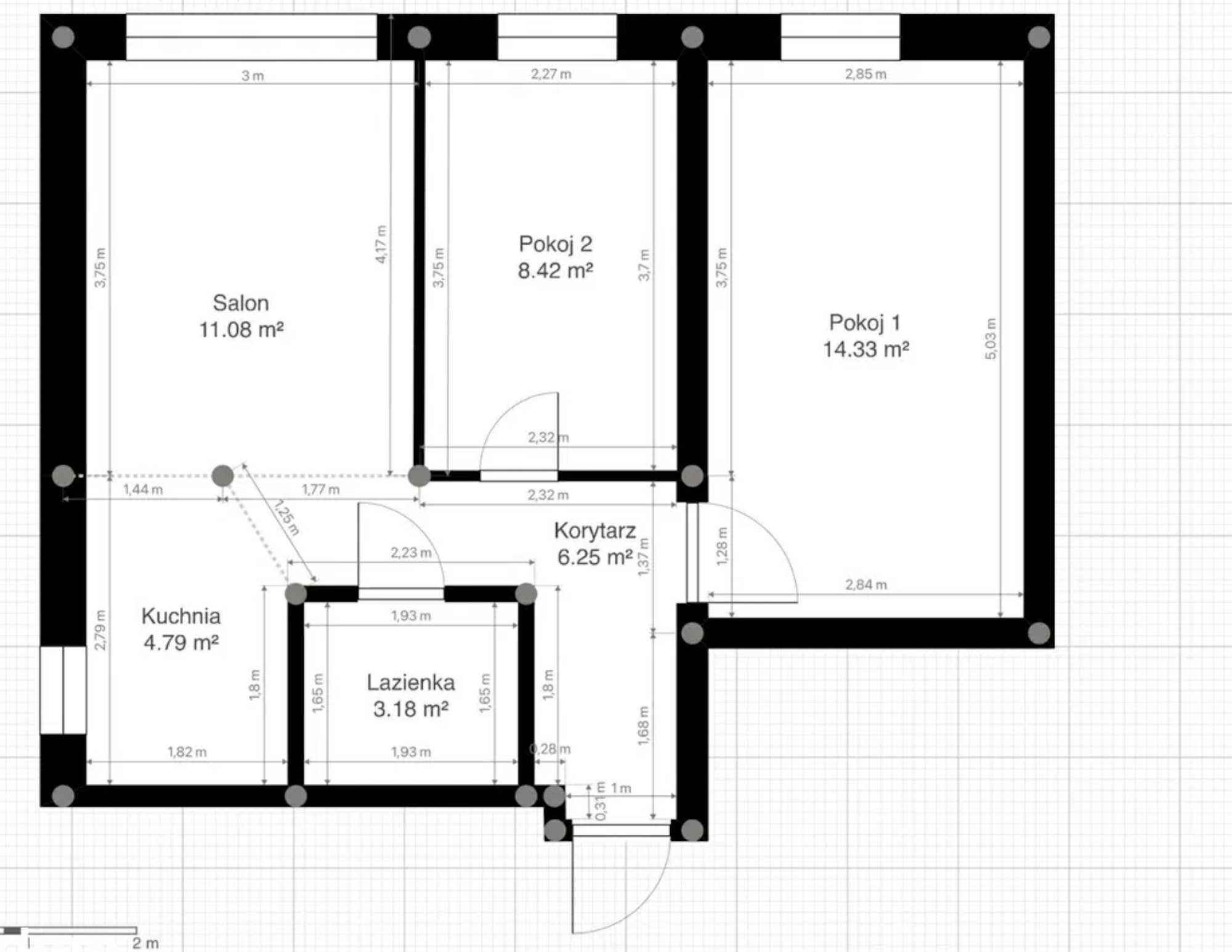
  • Powierzchnia

    49,91 m2
  • Pokoje

    2
  • Sypialnie

    1
  • Łazienki

    1
  • Piętro

    2
Dodatkowe udogodnienia
  • Komórka lok

Mint Property prezentuje funkcjonalne, trzypokojowe mieszkanie po generalnym remoncie, zlokalizowane w zielonej części Krakowa – w dzielnicy Prądnik Biały przy ul. Stachiewicza.

Mieszkanie o powierzchni użytkowej 49,91m² znajduje się na 2 piętrze w czteropiętrowym budynku z lat 70 i składa się z :

  • Salonu z aneksem kuchennym
  • Sypialni
  • Sypialni
  • Łazienka
  • Przedpokój

Budynek jest zadbany, a klatka schodowa została niedawno odświeżona. Nieruchomość posiada pełną własność z Księgą Wieczystą. Ekpozycja okien wschodnia. 

Ogrzewanie w mieszkaniu pochodzi z sieci miejskiej MPEC, natomiast ciepła woda podgrzewana jest piecykiem gazowym, który został estetycznie zabudowany w szafce kuchennej.

Lokal przeszedł kompleksowy remont obejmujący wymianę wszystkich najważniejszych instalacji. W mieszkaniu wykonano nowe instalacje hydrauliczne, gazowe oraz kanalizacyjne, a także zamontowano nowe grzejniki. Dzięki temu przyszły właściciel nie musi martwić się o kosztowne prace modernizacyjne przez wiele lat.

Mieszkanie posiada bardzo ustawny i funkcjonalny układ pomieszczeń, który daje możliwość łatwego wydzielenia trzeciej, niezależnej sypialni. To sprawia, że nieruchomość świetnie sprawdzi się zarówno dla rodziny, jak i jako inwestycja pod wynajem.

Mieszkanie sprzedawane jest w pełni wykończone. Wszystkie prace wykończeniowe zostaną zakończone do połowy kwietnia. Do własnej aranżacji pozostanie jedynie umeblowanie oraz urządzenie wnętrza zgodnie z indywidualnymi potrzebami i gustem.

Lokalizacja

Mieszkanie znajduje się w dzielnicy Prądnik Biały, na osiedlu Azory – spokojnej i dobrze rozwiniętej części Krakowa. Okolica cieszy się dużą popularnością ze względu na rozbudowaną infrastrukturę miejską oraz wygodny dostęp do centrum miasta.

W najbliższym otoczeniu znajdują się liczne sklepy, punkty usługowe, piekarnie, apteki, szkoły oraz przedszkola, dzięki czemu codzienne potrzeby można zrealizować w zasięgu krótkiego spaceru. W pobliżu dostępne są również większe markety oraz centra handlowe.

Dużym atutem lokalizacji jest bardzo dobra komunikacja z pozostałymi częściami miasta. W niedalekiej odległości znajdują się przystanki autobusowe oraz stacja kolejowa Kraków Łobzów, która umożliwia szybki dojazd do centrum oraz innych dzielnic.

Okolica oferuje również dostęp do terenów zielonych i rekreacyjnych. W pobliżu znajduje się Park Krowoderski oraz Park im. Stanisława Wyspiańskiego, które stanowią  idealne miejsce na spacery, aktywny wypoczynek czy spędzanie czasu na świeżym powietrzu. Połączenie zielonego otoczenia z pełną infrastrukturą sprawia, że jest to wygodne miejsce do życia zarówno dla rodzin, jak i osób pracujących w centrum miasta.

Cena

820 000 PLN 

czynsz administracyjny  600 PLN  

Zapraszamy do kontaktu oraz na prezentacje nieruchomości.

Cena

820 000 PLN 16 430 PLN / m2

Martyna Wenk

Martyna Wenk

577 223 220

Zobacz pozostałe moje oferty
Zapytaj o ofertę
Wyślij zapytanie o tę ofertę

Lokalizacja

Plan nieruchomosci (1)

plan
Ostatnia aktualizacja: