cookiesStrona korzysta z plików cookies

Kraków, komercyjna na sprzedaż, Bandurskiego

Nr oferty: 24282
  • Powierzchnia

    76,00 m2
  • Pokoje

    3
Dodatkowe udogodnienia
  • Balkon

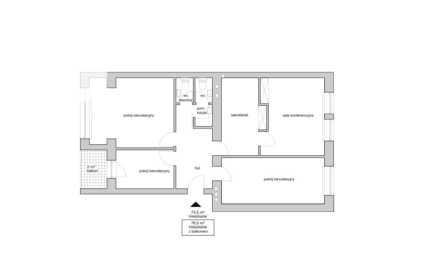
          Mint Property prezentuje lokal biurowy (obecnie kancelaria) na sprzedaż w doskonałej lokalizacji na osiedlu Oficerskim. Lokal ma powierzchnię 76,00 m2 (z balkonem) i położony jest na wysokim parterze dużej kamienicy całkowicie przebudowanej w 2000 roku.  

Niewielkim kosztem można przekształcić lokal na eleganckie mieszkanie (taka była pierwotne przeznaczenie).

Nieruchomość składa się z 6 pomieszczeń przedzielonych lekkimi ściankami:

- 3 gabinety: dwa po 14 m2 i jedno miejsze + balkon

- sala konferencyjna i sekretariat,

- mała kuchnia i 2 toalety oraz

- duży hall służący jako poczekalnia.

Lokal bardzo jasny z ekspozycją na stronę wschodnią i zachodnią.  Ogrzewanie z własnego dwufunkcyjnego pieca. 

Zamontowane wewnętrzne drzwi dźwiękoszczelne, zewnętrzne drzwi antywłamaniowe. Pełne okablowanie : internet, alarm, monitoring (kamera).

  Do kamienicy przynależ mały ogródek. Okolica spokojna i cicha.

 Lokal gotowy do wejścia. Idealny na gabinet, kancelarię itp.

 400 m do Sądu, 200 m do Ronda Mogilskiego-węzła komunikacyjnego (mnóstwo tramwajów i autobusów). Około 1 km do Dworca kolejowego i autobusowego. Tyle samo do Galerii Krakowskiej. 1,5 km do Starego Miasta.

   

Cena za lokal 1350000 zł

Wynagrodzenie dla biura.

 Zapraszam do kontaktu i na oglądanie lokalu.

Cena

1 350 000 PLN 17 763 PLN / m2

Marcin Bednarz

Marcin Bednarz

576 066 677

Zobacz pozostałe moje oferty
Zapytaj o ofertę
Wyślij zapytanie o tę ofertę

Lokalizacja

Plan nieruchomosci (1)

plan
Ostatnia aktualizacja: