cookiesStrona korzysta z plików cookies

Kraków, mieszkanie na sprzedaż, Marii i Bolesława Wysłouchów

Nr oferty: 23970
  • Powierzchnia

    54,40 m2
  • Pokoje

    3
  • Sypialnie

    2
  • Łazienki

    1
  • Piętro

    3
Dodatkowe udogodnienia
  • Przyjazne dla zwierząt
  • Balkon
  • Komórka lok

Mint Property prezentuje na sprzedaż trzypokojowe mieszkanie o powierzchni 54,4 m2 położone w dzielnicy Podgórze Duchackie, przy ul. Marii i Bolesława Wysłouchów.

Nieruchomość usytuowana jest na trzecim piętrze czteropiętrowego budynku z 1995 roku, w skład której wchodzi:

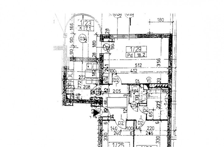
  • Salon - 18,2 m2
  • Kuchnia - 7,5 m2
  • Pokój 1 - 8,8 m2
  • Pokój 2 - 8 m2
  • Łazienka z wanną - 4 m2
  • WC - 1,5 m2
  • Przedpokój - 6,5 m2

Dodatkowo, do nieruchomości przynależy balkon o powierzchni 7,1 m2. Ekspozycja dwustronna: wschodnia oraz zachodnia. Rozkład mieszkania przedstawia rzut załączony do oferty. Wysokość mieszkania 2.5 m.

Mieszkanie jest bardzo zadbane, gotowe do wprowadzenia - wykończone oraz wyposażone we wszystkie potrzebne sprzęty. Na podłogach panele oraz terakota.

Ogrzewanie oraz ciepła woda z sieci miejskiej. Czynsz administracyjny wynosi ok. 790 PLN.  

Do mieszkania przynależy również piwnica o powierzchni 7,2 m2 w cenie 10 000 PLN. Dostępne jest również pomieszczenie na rowery oraz wózki.

Parking przed budynkiem przeznaczony dla mieszkańców (z bezpłatnym identyfikatorem).

Cena jest do negocjacji. Posiadamy klucze do nieruchomości - możliwość elastycznej prezentacji. 

Lokalizacja

Nieruchomość przy ulicy Marii i Bolesława Wysłouchów charakteryzuje się znakomitą lokalizacją, a jednocześnie cichą, spokojną oraz zieloną okolicą. 

Lokalizacja zapewnia łatwy dostęp do sklepów, aptek, przychodni, restauracji, kawiarni oraz innych punktów usługowych. W pobliżu znajdują się również szkoła i przedszkole.

Lokalizacja przy ulicy Marii i Bolesława Wysłouchów zapewnia doskonały dostęp do komunikacji miejskiej, w pobliżu znajdują się przystanki autobusowe oraz tramwajowe, które umożliwiają szybki dojazd do centrum Krakowa.

Cena

739 000 PLN

Piwnica: 10 000 PLN

Zapraszamy do kontaktu oraz na prezentację nieruchomości.

Cena

739 000 PLN 13 585 PLN / m2

Azat Petrosyan

Azat Petrosyan

575 905 908

Zobacz pozostałe moje oferty
Zapytaj o ofertę
Wyślij zapytanie o tę ofertę

Lokalizacja

Plan nieruchomosci (1)

plan
Ostatnia aktualizacja: