cookiesStrona korzysta z plików cookies

Kraków, komercyjna na sprzedaż, Tyniecka

Nr oferty: 24250
  • Powierzchnia

    193,69 m2
  • Pokoje

    6
Dodatkowe udogodnienia
  • Ogrodek
  • Przyjazne dla zwierząt
  • Winda
  • Klimatyzacja
  • Komórka lok

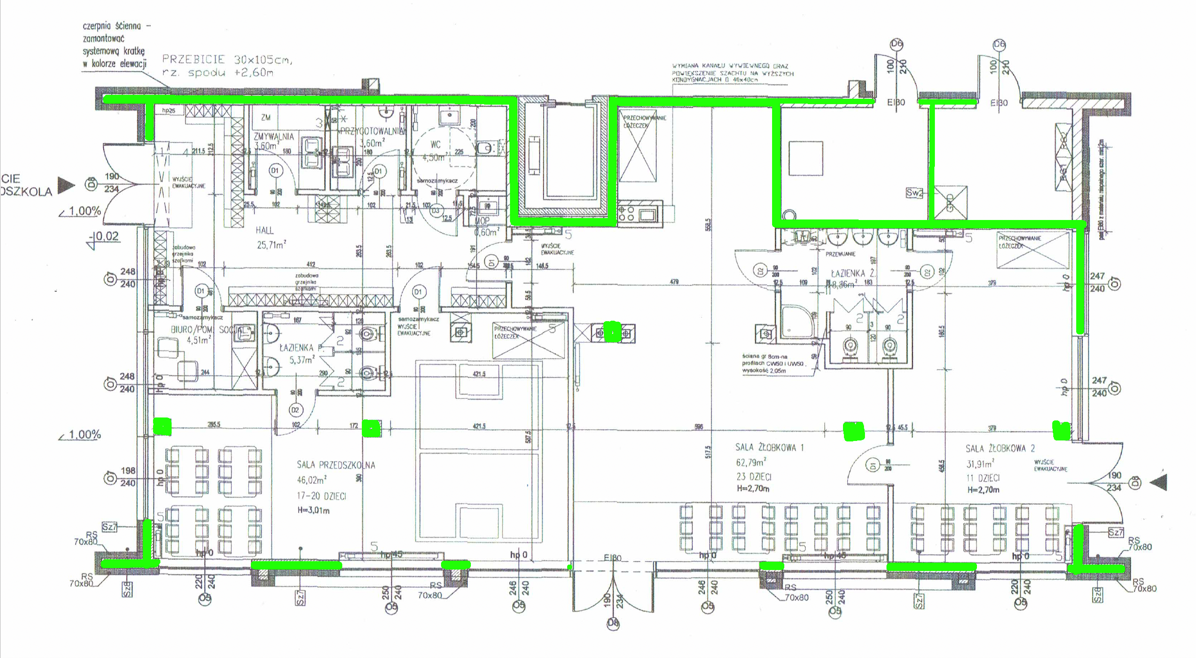
MINT PROPERTY prezentuje na sprzedaż lokal usługowy o pow. 200 m2 położony na parterze w budynku przy ul. Tynieckiej. Witryny i okna od strony ulicy.

Lokal obecnie wykończony i zaaranżowany jest pod przedszkole, niemniej jednak doskonale nadaje się również np. pod gabinety dentystyczne, klinikę medycyny estetycznej, sklep czy klinikę weterynaryjną itp. Idealnie nadaje się też pod siedzibę biura.

Główne cechy lokalu:

- bezprogowe wejście

- wysokość - 3 m,
- duży parking,
- duże witryny,
- zgoda na sprzedaż alkoholu,
- lokal posiada 3 niezależne wejścia,
- wyposażony jest w klimatyzację i rekuperację.

- posiada przynależny ogródek oraz parking

Lokalizacja

Ogrzewanie mieszkań ze wspólnej kotłowni gazowej, która jest zlokalizowana w budynku.
Na inwestycji zamontowano monitoring i wideodomofony.

Teren jest w pełni ogrodzony, wjazd na teren za pomocą szlabanu na pilota.

W inwestycji zaprojektowano 23 apartamenty, jest kameralnie i cicho, a zarazem bardzo blisko centrum Krakowa.

Inwestycja zlokalizowana jest blisko lotniska w Balicach, obwodnicy oraz autostrady A4.

Cena

Cena sprzedaży: 2 800 000 PLN

Cena

2 800 000 PLN 14 456 PLN / m2

Dorota Kamińska

Dorota Kamińska

505 452 950

Zobacz pozostałe moje oferty
Zapytaj o ofertę
Wyślij zapytanie o tę ofertę

Lokalizacja

Plan nieruchomosci (1)

plan
Ostatnia aktualizacja: