cookiesStrona korzysta z plików cookies

Kraków, mieszkanie na sprzedaż, Lubicz

Nr oferty: 24216
  • Powierzchnia

    72,69 m2
  • Pokoje

    3
  • Łazienki

    2
  • Piętro

    1
Dodatkowe udogodnienia
  • Klimatyzacja

Mint Property prezentuje na sprzedaż nieruchomość inwestycyjną w ścisłym centrum Krakowa, zlokalizowaną przy ul. Lubicz, w eleganckiej kamienicy z 1895 roku.

Lokal znajduje się na 1. piętrze budynku (bez windy) i stanowi atrakcyjną propozycję dla inwestorów poszukujących nieruchomości z ugruntowanym potencjałem najmu.

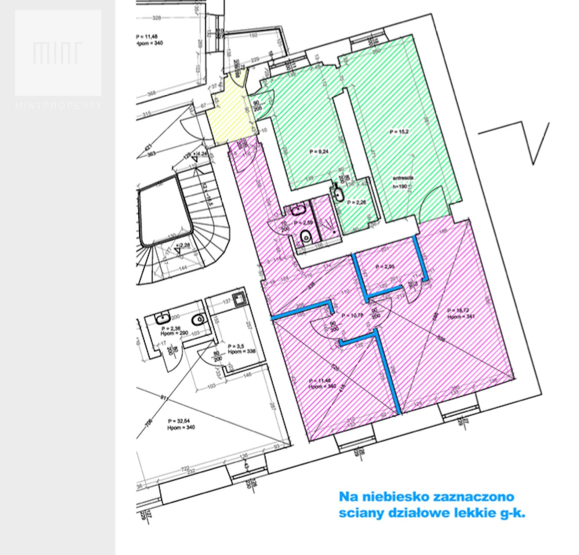
Nieruchomość składa się z dwóch mieszkań, które obecnie zostały połączone w jeden lokal, jednak każde z nich posiada oddzielną Księgę Wieczystą. Takie rozwiązanie daje dużą elastyczność inwestycyjną – możliwość pozostawienia obecnego układu, ponownego podziału na dwa niezależne mieszkania lub dalszej optymalizacji pod wynajem.

Powierzchnie lokali: 26,19 m² i 46,50 m², co daje łączną powierzchnię, która wynosi 72,69 m².

Nieruchomość była przez cały czas wynajmowana, co potwierdza jej wysoką atrakcyjność dla najemców oraz stabilny potencjał inwestycyjny:

  • dwa lokale z osobnymi księgami wieczystymi
  • możliwość ponownego podziału na dwa niezależne mieszkania
  • atrakcyjna powierzchnia pod wynajem długoterminowy lub dla studentów
  • możliwość prowadzenia dwóch niezależnych najemów
  • lokalizacja bardzo poszukiwana przez najemców

Lokale wyposażone w klimatyzację i ogrzewanie gazowe.

Lokalizacja

Ulica Lubicz to jedna z najbardziej cenionych lokalizacji inwestycyjnych w Krakowie. W sąsiedztwie znajdują się:

  • Dworzec Główny i Galeria Krakowska
  • Stare Miasto i Rynek Główny w zasięgu spaceru
  • liczne uczelnie wyższe
  • przystanki tramwajowe i autobusowe
  • sklepy, restauracje i pełna infrastruktura miejska

Dzięki temu nieruchomość cieszy się stałym zainteresowaniem najemców, zarówno w segmencie najmu długoterminowego, jak i studenckiego.

Cena

Cena sprzedaży: 1 200 000 zł

Prowizja dla biura.

Zapraszamy do kontaktu w celu uzyskania szczegółowych informacji oraz umówienia się na prezentację.

 

Cena

1 200 000 PLN 16 508 PLN / m2

Katarzyna Mielecka

Katarzyna Mielecka

532 261 513

Zobacz pozostałe moje oferty
Zapytaj o ofertę
Wyślij zapytanie o tę ofertę

Lokalizacja

Plan nieruchomosci (1)

plan
Ostatnia aktualizacja: