cookiesStrona korzysta z plików cookies

Kraków, mieszkanie na sprzedaż, Gabriela Narutowicza

Nr oferty: 23967
  • Powierzchnia

    52,20 m2
  • Pokoje

    2
  • Sypialnie

    1
  • Łazienki

    1
  • Piętro

    3
Dodatkowe udogodnienia
  • Przyjazne dla zwierząt
  • Balkon
  • Komórka lok

Mint Property prezentuje na sprzedaż dwupokojowe mieszkanie o powierzchni 52,20 m2 położone w dzielnicy Prądnik Biały, przy ul. Gabriela Narutowicza.

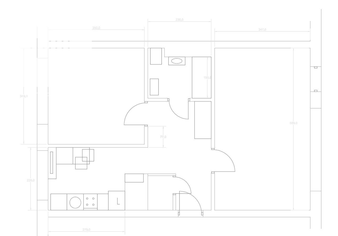
Nieruchomość usytuowana jest na trzecim piętrze czteropiętrowego budynku z 1980 roku, w skład której wchodzi:

  • Salon
  • Sypialnia
  • Kuchnia
  • Łazienka z wanną z prysznicem
  • WC
  • Przedpokój

Dodatkowo, do nieruchomości przynależy balkon. Ekspozycja dwustronna: zachodnia oraz wschodnia. Rozkład mieszkania przedstawia rzut załączony do oferty.

Mieszkanie jest po generalnym remoncie w 2020 roku, gotowe do zamieszkania - wyposażone we wszystkie potrzebne sprzęty. Na podłodze w pokojach panele, a w łazience, ubikacji oraz kuchni płytki. 

Ogrzewanie z sieci miejskiej. Opłaty administracyjne wynoszą ok. 700 PLN. Dodatkowo prąd, gaz, ciepła i zimna woda, śmieci według zużycia.

Dodatkowo, do mieszkania przynależy piwnica o powierzchni ok. 6 m2.

Parking przed budynkiem dla mieszkańców, ograniczony szlabanem.

Lokalizacja

Nieruchomość przy ulicy Gabriela Narutowicza charakteryzuje się znakomitą lokalizacją, a jednocześnie cichym oraz spokojnym osiedlem. 

Lokalizacja gwarantuje łatwy dostęp do sklepów, restauracji, kawiarni oraz innych punktów usługowych. Na osiedlu znajduje się szkoła podstawowa, przedszkole oraz plac zabaw. W odległości 250 m znajduje się Dworek Białoprądnicki z parkiem.

Lokalizacja przy ulicy Gabriela Narutowicza zapewnia doskonały dostęp do komunikacji miejskiej, w pobliżu znajdują się przystanki autobusowe oraz tramwajowe, które umożliwiają szybki dojazd do centrum Krakowa.

Cena

749 000 PLN

Zapraszamy do kontaktu oraz na prezentację nieruchomości.

Cena

749 000 PLN 14 349 PLN / m2

Azat Petrosyan

Azat Petrosyan

575 905 908

Zobacz pozostałe moje oferty
Zapytaj o ofertę
Wyślij zapytanie o tę ofertę

Lokalizacja

Plan nieruchomosci (1)

plan
Ostatnia aktualizacja: