cookiesStrona korzysta z plików cookies

Kraków, mieszkanie na sprzedaż, Aleje Słowackiego

Nr oferty: 23857
  • Powierzchnia

    56,00 m2
  • Pokoje

    4
  • Sypialnie

    3
  • Łazienki

    3
  • Piętro

    4
Dodatkowe udogodnienia
  • Winda
  • Balkon

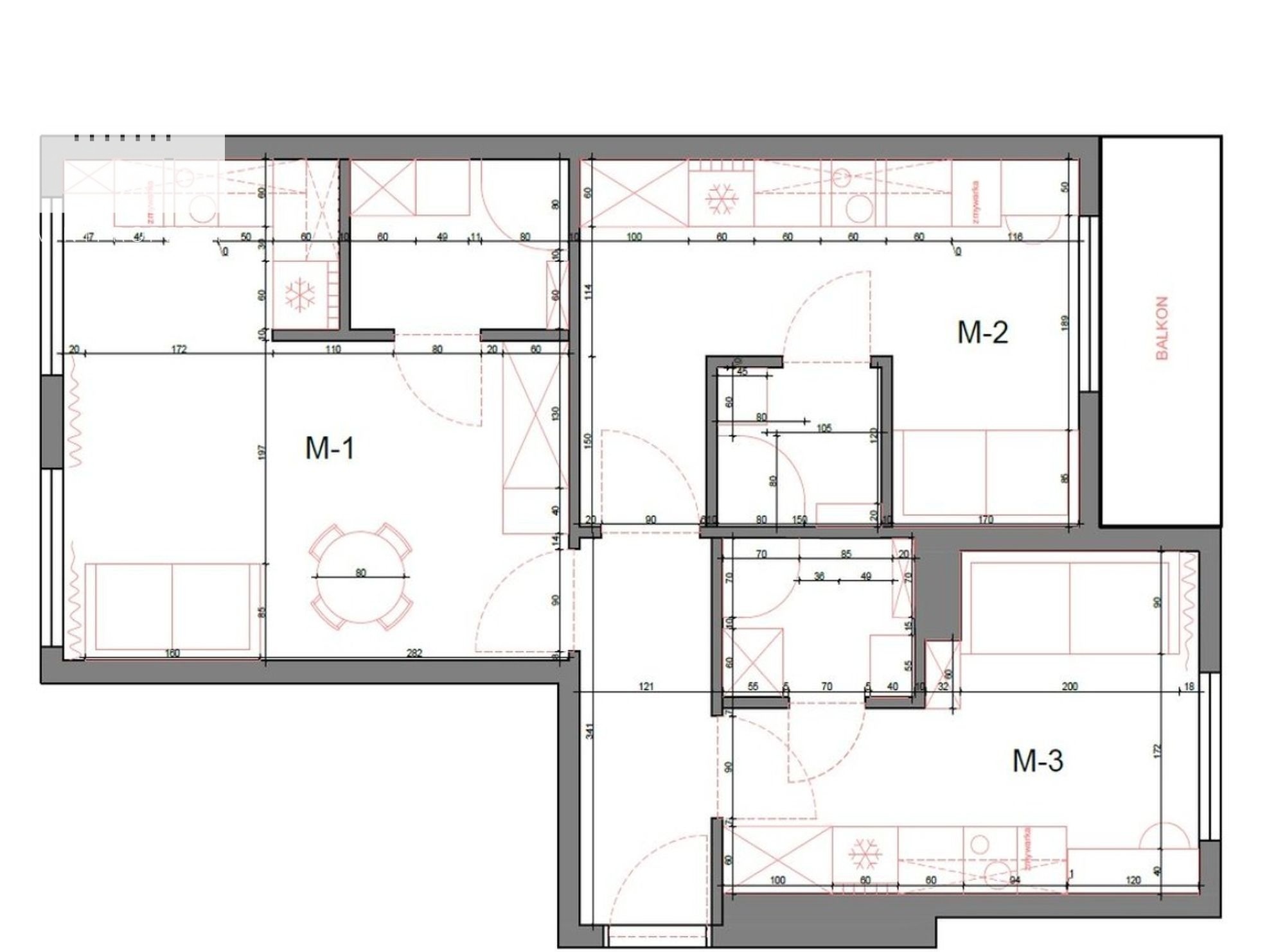
Mint Property prezentuje na sprzedaż gotowy apartament inwestycyjny o powierzchni 56 m2 podzielony na trzy mikrokawalerki w centrum Krakowa – Aleja Słowackiego.

W skład mieszkania wchodzi :

trzy w pełni samodzielne mikrokawalerki – każda z aneksem kuchennym i łazienką.

• Lokal po generalnym remoncie, wykończony i wyposażony – gotowy do natychmiastowego wynajmu

• Inwestycja typu "gotowiec" – możesz zacząć zarabiać od dnia zakupu

• Ścisłe centrum Krakowa – Aleja Słowackiego, kilkanaście minut spacerem na Rynek Główny

 

Standard i udogodnienia

• Piętro: 4 z 6 – winda w budynku

• Balkon: przestronny, z widokiem na dziedziniec

• Ogrzewanie: miejskie (MPEC) – komfort i niskie koszty

• Piwnica do dyspozycji

• Prywatny parking z dostępem przez szlaban – tylko dla mieszkańców (rzadkość w tej lokalizacji )

Lokalizacja

• Aleja Słowackiego – jedna z najlepiej skomunikowanych ulic Krakowa

• 200 m do przystanku tramwajowego i autobusowego

• 400 m do Nowego Kleparza

• 12 minut pieszo na Rynek Główny

• W pobliżu: AGH, UJ, UP, korporacje, instytucje, restauracje, sklepy, siłownie

• Rejon nieprzerwanie atrakcyjny dla studentów, pracowników i najemców krótkoterminowych

Cena

Cena mieszkania: 1 299 000 PLN

Prywatny parking z dostępem przez szlaban – tylko dla mieszkańców.

Zapraszam do kontaktu oraz na prezentacje nieruchomości.

Cena

1 299 000 PLN 23 196 PLN / m2

Tomasz Szerment

Tomasz Szerment

574 744 044

Zobacz pozostałe moje oferty
Zapytaj o ofertę
Wyślij zapytanie o tę ofertę

Lokalizacja

Plan nieruchomosci (2)

plan
Ostatnia aktualizacja: