cookiesStrona korzysta z plików cookies

Kraków, mieszkanie na sprzedaż, Stańczyka

Nr oferty: 23791
  • Powierzchnia

    41,00 m2
  • Pokoje

    2
  • Sypialnie

    1
  • Łazienki

    1
  • Piętro

    6
Dodatkowe udogodnienia
  • Winda
  • Balkon
  • Ochrona

Mint Property ma przyjemność zaprezentować komfortowe, 2-pokojowe mieszkanie na sprzedaż, położone w jednej z najbardziej pożądanych lokalizacji – na nowoczesnym osiedlu przy ul. Stańczyka w krakowskich Bronowicach.

Lokal usytuowany jest na 6. piętrze czternastopiętrowego budynku z windami, monitoringiem oraz pełną infrastrukturą dla mieszkańców.

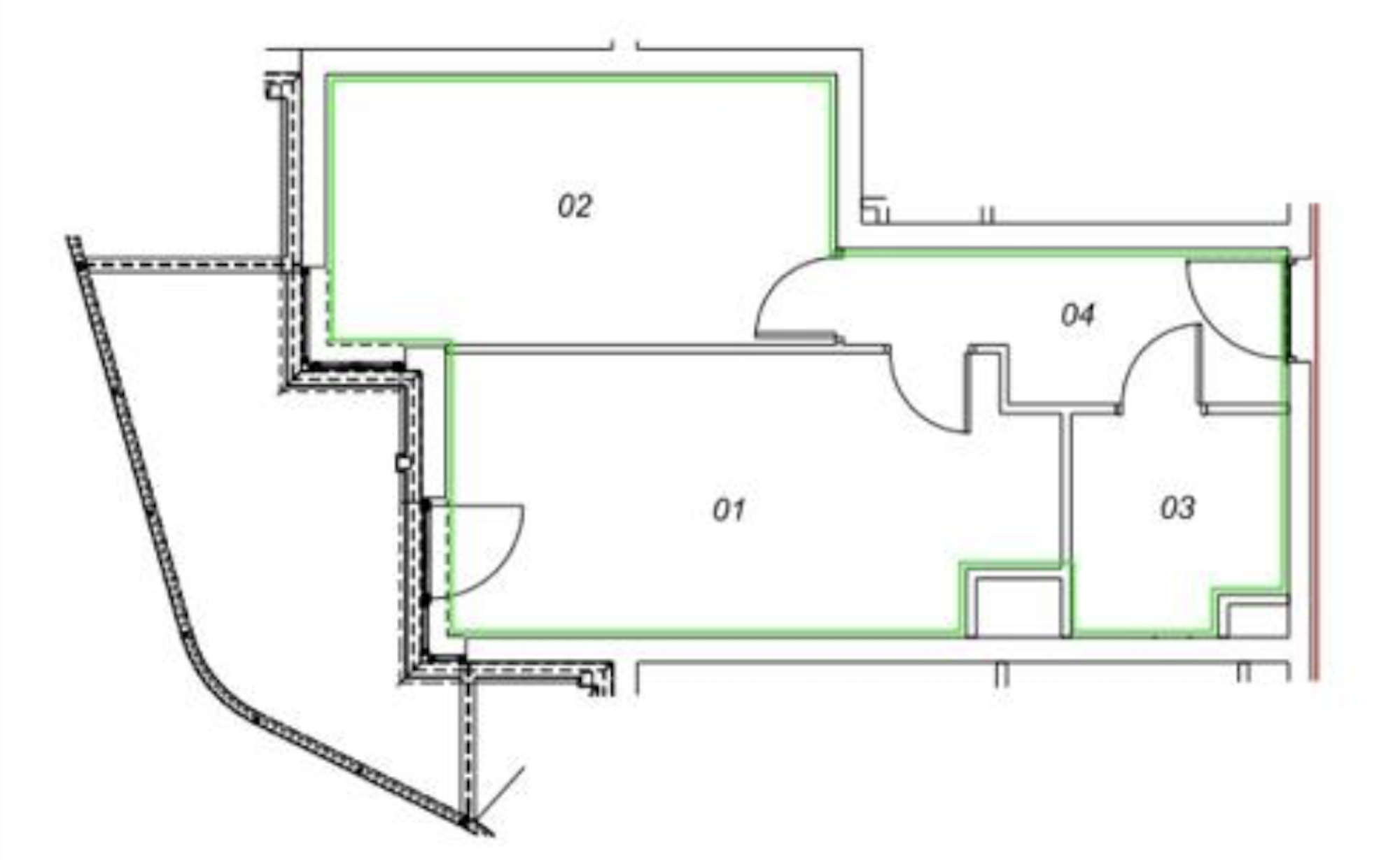
Układ mieszkania (pow. 40,53 m²):

  • przestronny salon z aneksem kuchennym (16,45 m²) i wyjściem na imponujący balkon,
  • sypialnia (13,69 m²) z pojemną szafą,
  • łazienka (4,55 m²) z prysznicem,
  • przedpokój (5,84 m²) z szafą.

Dodatkowym atutem jest duży balkon o powierzchni ok. 11 m², skierowany na południowy zachód – idealne miejsce na relaks przy zachodzie słońca i gwarancja doskonałego doświetlenia wnętrz przez większą część dnia.

Mieszkanie zostało wykończone z dbałością o jakość i funkcjonalność – kuchnia wyposażona jest w zmywarkę, lodówkę, płytę indukcyjną, okap. Wszystkie meble  mogą pozostać w mieszkaniu.

Budynek, w którym znajduje się lokal, wyposażony jest w dwie windy. Ogrzewanie i ciepła woda pochodzą z sieci miejskiej.

Lokalizacja

Lokalizacja zapewnia doskonały dostęp do komunikacji miejskiej – zaledwie 3 minuty pieszo do przystanku autobusowego, 5 minut do tramwaju i 8 minut do stacji SKA. W bliskim sąsiedztwie znajdują się liczne sklepy, w tym Galeria Bronowice, Ikea, OBI i Castorama, a także uczelnie wyższe, tereny rekreacyjne, ścieżki rowerowe oraz rozbudowana infrastruktura osiedlowa – żłobek, przedszkole, piekarnia, restauracje i plac zabaw.

To mieszkanie to połączenie wygody codziennego życia, nowoczesnego standardu i świetnej lokalizacji. 

Cena

899 000 PLN

Miejsce postojowe w garażu podziemnym 70 000 PLN 

Zapraszamy do kontaktu i umówienia się na prezentację.

Cena

899 000 PLN 21 927 PLN / m2

Martyna Wenk

Martyna Wenk

577 223 220

Zobacz pozostałe moje oferty
Zapytaj o ofertę
Wyślij zapytanie o tę ofertę

Lokalizacja

Plan nieruchomosci (1)

plan
Ostatnia aktualizacja: