cookiesStrona korzysta z plików cookies

Kraków, mieszkanie na sprzedaż, Wieniawskiego

Nr oferty: 22812
  • Powierzchnia

    31,20 m2
  • Pokoje

    2
  • Sypialnie

    1
  • Łazienki

    1
  • Piętro

    parter
Dodatkowe udogodnienia
  • Ogrodek

Mint Property prezentuje dwupokojowe mieszkanie o powierzchni 31.2 m2 położone na Olszy przy spokojnej ulicy Henryka Wieniawskiego. 

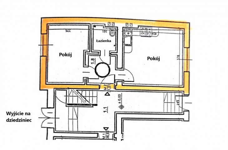
Mieszkanie położone na parterze kameralnego dwupiętrowego budynku oddanego do użytku w 2018 roku, składa się z następujących pomieszczeń:

  • Pokój
  • Pokój II
  • Łazienka
  • Przedpokój

Rozkład nieruchomości prezentuje rzut załączony do oferty. Ekspozycja dwustronna: północno-wschodnia oraz południowo-zachodnia. Mieszkanie dobrze doświetlone, posiada wyższe sufity - 256cm, przez co sprawia wrażenie przestrzennego. 

Mieszkanie w bardzo dobrym stanie technicznym, możliwość pozostawienia wyposażenia w cenie mieszkania. Ze względu na to, że mieszkanie było wykorzystywane jako gabinety terapeutyczne - nie posiada aneksu kuchennego. W większym pokoju pozostawione zostały wszelkie instalacje, przez co pozostaje jedynie dokupić wyposażenie kuchenne. 

Budynek został oddany do użytku w 2018 roku. Ogrzewanie oraz ciepłą wodę zapewnia kotłownia w budynku. Czynsz administracyjny wynosi 340 PLN. Budynkiem zarządza wspólnota. Parkowanie na ogólnodostępnych miejscach parkingowych przy ulicy. Pełna własność z KW. Dodatkowo, za budynkiem pozostaje do dyspozycji mieszkańców mały, zielony dziedziniec. 

Posiadamy klucze do nieruchomości - możliwość elastycznej prezentacji. 

Lokalizacja

Ulica Henryka Wieniawskiego znajduje się w krakowskiej dzielnicy Prądnik Czerwony, około 2,4 km na północny wschód od centrum miasta. W bezpośrednim sąsiedztwie ulicy znajdują się różnorodne punkty usługowe oraz handlowe. W okolicy znajdują się także tereny zielone, które sprzyjają rekreacji i wypoczynkowi. Dodatkowo, w pobliżu ulicy Henryka Wieniawskiego znajdują się placówki edukacyjne, takie jak szkoły podstawowe i przedszkola, co czyni tę lokalizację atrakcyjną. Świetną dostępność komunikacyjną zapewniają przystanki autobusowe przy Rondzie Młyńskim oraz budowa aktualnie linia tramwajowe. Dzięki bliskości centrum miasta oraz rozwiniętej infrastrukturze, ulica Henryka Wieniawskiego stanowi dogodną lokalizację zarówno do zamieszkania, jak i prowadzenia działalności gospodarczej.

Cena

515 000 PLN

Zapraszam do kontaktu oraz na prezentacje nieruchomości. 

Cena

515 000 PLN 16 506 PLN / m2

Łukasz Janawa

Łukasz Janawa

536 303 391

Zobacz pozostałe moje oferty
Zapytaj o ofertę
Wyślij zapytanie o tę ofertę

Lokalizacja

Plan nieruchomosci (1)

plan
Ostatnia aktualizacja: