cookiesStrona korzysta z plików cookies

Kraków, mieszkanie na sprzedaż, Lubomirskiego

Nr oferty: 21614
  • Powierzchnia

    103,00 m2
  • Pokoje

    4
  • Sypialnie

    3
  • Łazienki

    2
  • Piętro

    2
Dodatkowe udogodnienia
  • Komórka lok

Mint Property prezentuje reprezentacyjny apartament o powierzchni 103 m2 położone przy ulicy Lubomirskiego. 

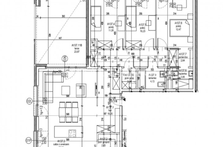
Nieruchomość położona jest na drugim piętrze trzypiętrowej kamienicy zaprojektowanej przez Karola Szpondrowskiego z 1912 , składa się z:

  • Salon z aneksem kuchennym z wyjściem na balkon
  • 3 sypialnie
  • 2 łazienki 
  • Przedpokój 

Rozkład mieszkania prezentuje rzut załączony do nieruchomości. 

Mieszkanie jest wykończone w wysokim standardzie i nie wymaga żadnych nakładów finansowych.

Do mieszkania przynależy piwnica oraz poddasze. W nieruchomości istnieje możliwość podziału mieszkania na 3 mniejsze. Dużym atutem mieszkania jest udział w poddaszu kamienicy, który posiada potencjał inwestycyjny.

Czynsz administracyjny wynosi około 600 zł (w tym fundusz remontowy 400 zł). Ogrzewanie oraz ciepła woda z pieca dwufunkcyjnego. 

Lokalizacja

Spacer na Rynek Główny zajmuje 7 minut. Dworzec PKP / Autobusowy i do Galerii Krakowskiej zaraz obok. Tak mała odległość jest bardzo ważna dla turystów – najemców na krótki termin.

W niedalekiej okolicy znajdują się główne atrakcje turystyczne Krakowa: Rynek Główny, Kościół Mariacki, Sukiennice, Planty, Wawel, Kazimierz. Miejsce idealne dla turystów, ​którzy ​chcą ​chłonąć ​kulturalne ​i ​historyczne ​atrakcje, ​jakie ​oferuje ​Kraków.

Bardzo blisko budynku znajdują się przystanki autobusowe i tramwajowe doskonale skomunikowane z całym Krakowem. Bezpośrednie połączenie z Lotniskiem Balice.

Cena

1 970 000  PLN

Zapraszamy do kontaktu oraz na prezentacje nieruchomości.
Sprawdź inne nasze oferty na stronie!

Cena

1 970 000 PLN 19 126 PLN / m2

Martyna Wenk

Martyna Wenk

577 223 220

Zobacz pozostałe moje oferty
Zapytaj o ofertę
Wyślij zapytanie o tę ofertę

Lokalizacja

Plan nieruchomosci (1)

plan
Ostatnia aktualizacja: