cookiesStrona korzysta z plików cookies

Kraków, mieszkanie na sprzedaż, Sobieskiego

Nr oferty: 18525
  • Powierzchnia

    155,00 m2
  • Pokoje

    5
  • Sypialnie

    5
  • Łazienki

    2
  • Piętro

    1
Dodatkowe udogodnienia
  • Przyjazne dla zwierząt

Biuro nieruchomości Mint Property prezentuje na sprzedaż 5 pokojowe, przestronne  mieszkanie zlokalizowane  w  ścisłym centrum miasta.

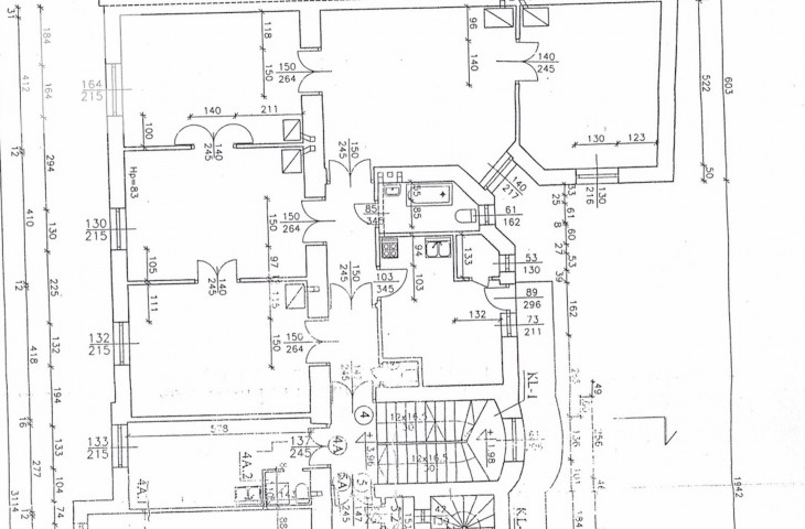
Prezentowana nieruchomość znajduje się na 1 piętrze w zabytkowej kamienicy z 1909 roku,  ma powierzchnię 155 m2 i składa się z:

  • kuchni 
  • spiżarni
  • 5 pokoi
  • łazienki
  • toalety
  • przedpokoju

Do mieszkania przynależy balkon oraz piwnica.

W mieszkaniu znajdują się zabytkowe piece kaflowe.

Lokal gotowy do zamieszkania. 

Lokalizacja

Mieszkanie zlokalizowane jest w ścisłym centrum Krakowa ( do Rynku Głównego ok 10-15 minut spacerem, do Dworca Głównego ok 25 minut ) Okolica jest bardzo cicha i spokojna. W pobliżu liczne sklepy, restauracje oraz przystanki tramwajowe. 

Cena

2 900 000 PLN

Zapraszam do kontaktu oraz na prezentację nieruchomości.

Cena

2 900 000 PLN 18 710 PLN / m2

Katarzyna Mielecka

Katarzyna Mielecka

532 261 513

Zobacz pozostałe moje oferty
Zapytaj o ofertę
Wyślij zapytanie o tę ofertę

Lokalizacja

Plan nieruchomosci (1)

plan

Video / Wirtualna wizyta

Ostatnia aktualizacja: