cookiesStrona korzysta z plików cookies

Grabiny, dom na sprzedaż, Grabiny

Nr oferty: 22986
  • Powierzchnia użytkowa

    106,00 m2
  • Powierzchnia działki

    789 m2
  • Pokoje

    4
  • Łazienki

    1
  • Rok budowy

    2025
Dodatkowe udogodnienia
  • Ogrodek
  • Przyjazne dla zwierząt

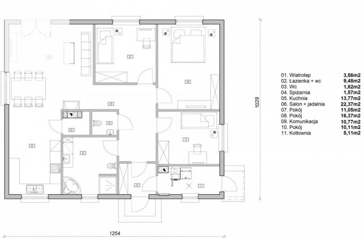
Biuro Nieruchomości Mint Property przedstawia na sprzedaż dwa domy w stanie surowym otwartym o powierzchni 106 mkw. Budynki położone na 8 arowych  działkach. 

Budynki parterowe kryte dachówką ceramiczną Braas, składające się z pomieszczeń: salonu z kuchnią i wyjściem na taras, trzech pokoi, łazienki, toalety oraz kotłowni. 

Uzbrojenie: prąd, woda, gaz, przydomowa oczyszczalnia 

Budynki sprzedawane w stanie surowym otwartym, co daje swobodę w aranżacji wykończenia dla przyszłego użytkownika.

Istnieje możliwość wykończenia budynku do stanu deweloperskiego lub "pod klucz"

*Rysunki i wizualizacje budynku mają charakter poglądowy, nie stanowią oferty w znaczeniu Kodeksu Cywilnego.

Lokalizacja

Nieruchomość położona w Grabinach wśród luźnej zabudowy jednorodzinnej oraz terenów leśnych. To idealne miejsce dla osób szukających nieruchomości w cichym i spokojnym miejscu z łatwym dostępem do punktów handlowo-usługowych. Odległość do Dębicy ok. 8 km.

Cena

Cena: 399 000 zł 

Nasze biuro oferuje pomoc w uzyskaniu kredytu hipotecznego na korzystynych warunkach.

Kupujący nie płaci podatku PCC.

Zapraszamy do kontaktu z naszym biurem.

 

Cena

399 000 PLN 3 764 PLN / m2

Agata Ciebień

Agata Ciebień

535 158 662

Zobacz pozostałe moje oferty
Zapytaj o ofertę
Wyślij zapytanie o tę ofertę

Lokalizacja

Ostatnia aktualizacja: