cookiesBy using this site you agree to cookies

Kraków, commercial, rent, al. Beliny -Prażmowskiego

offer ID: 24318
  • Size

    240,00 m2
  • Rooms

    8
  • Floor

    3
Additional amenities
  • Air conditioning
  • Balcony

Mint Property is pleased to present a spacious office space for rent with an area of 240 m², located at Aleje Pułkownika Władysława Beliny-Prażmowskiego.

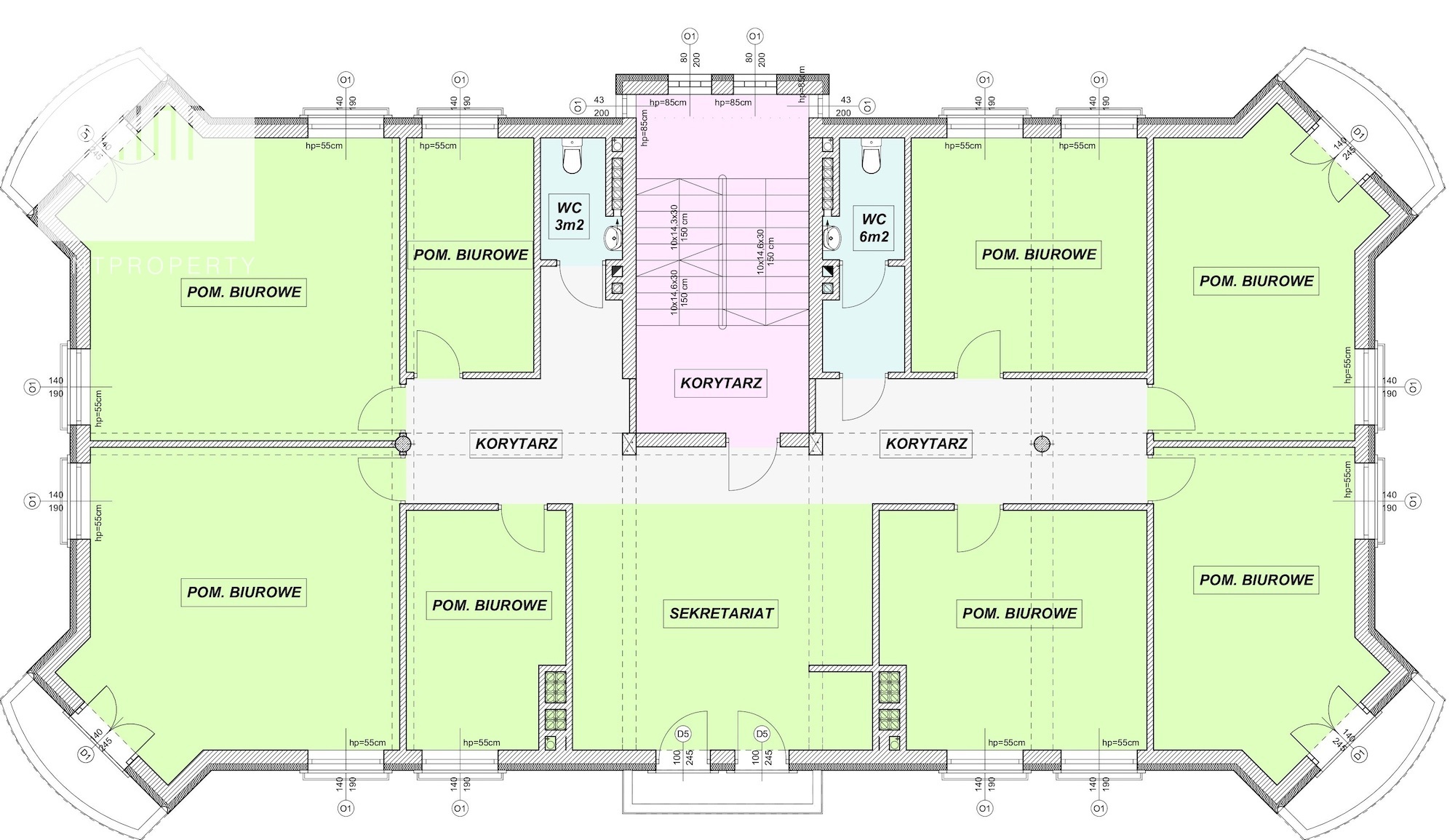
Room layout:

  • 8 separate office rooms
  • Secretariat / reception
  • Corridor
  • 2 toilets (WC)

The premises are ideal for use as a company headquarters, accounting office, law firm, language school, or service business.

Location

Aleja Beliny-Prażmowskiego is located in the very center of Krakow, in the Grzegórzki district.

The Mogilskie Roundabout is located nearby – a large public transport hub with trams and buses, from where you can quickly reach various parts of the city.

The stops are right next to the avenue, and it takes about 5–10 minutes by tram or bus to get to the Main Market Square, for example.

 

Price

Rent: PLN 16,800 net + utilities
Parking spaces: 3 parking spaces at PLN 300/month (per space)
One-time commission for the real estate agency.

Feel free to contact me and arrange a viewing of the property.

Price

16 800 PLN month 70 PLN / m2

Barbara Kowynia

Barbara Kowynia

532 254 309

Zobacz pozostałe moje oferty
Enquiry for an offer
Send a message

Location

Floor plan (1)

plan
Last updated: